x
Rentals
Sales
Management
careers
Meet the Team
Contact
Egmont St.
Photos
:
Egmont St.
Brookline
MA
02446
Available for Rent
:
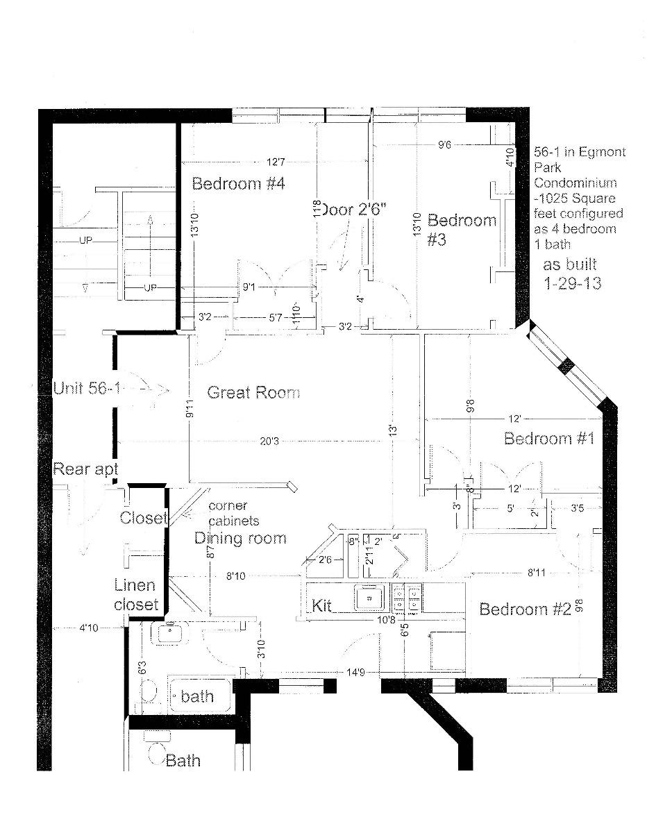
$6,650, 4 Bed, 2 Bath, Unit #3
$5,335, 3 Bed, 1 Bath, Unit #6
$5,130, 3 Bed, 1 Bath, Unit #4
$4,995, 3 Bed, 1 Bath, Unit #2
Listing ID
:
1908240
Rent
:
$6,100
Beds
:
4
Baths
:
1
Features
:
Breakfast Nook, Dishwasher, Disposal, Fireplace (Decorative), Hardwood Floors, Heat & Hot Water Included, Laundry in Building, Student Friendly.
Request Information
Request Information
Toggle map
Back to Search